012 362 1741
info@practicegroup.co.za
Facebook
Google
Facebook
Google
Home
About
Services
Portfolio
Blog
Contact Us
Home
About
Services
Portfolio
Blog
Contact Us
Select Page
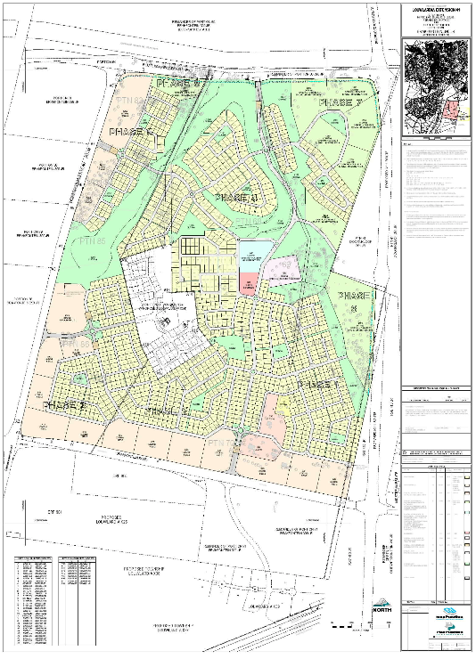
Louwlardia Commercial Park